Skip to main content
Home
Mobile search

Main navigation

  • A honlapról
  • Témák
  • Házak
  • Tanulmányok
  • Keresés
  • English
  • magyar
Secondary branding image
Építészek lakásai
Image
PreviousNext
Image

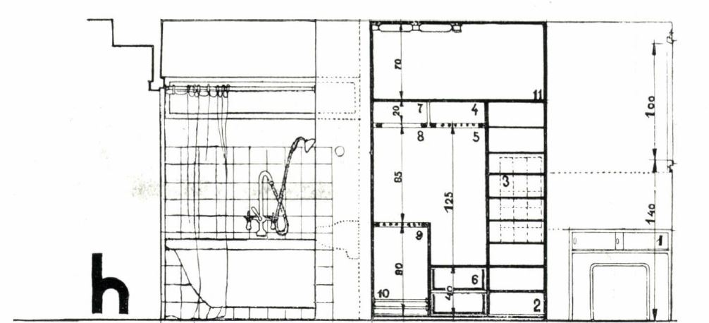
a fürdőszoba terve

Subject
Molnár Farkas lakása (I. Delej-villa -1929)
Related work
Építészek lakásai
Reference code
Tér és forma 1930.3.
Letöltés
PreviousNext
Home
Budapest,
Teve utca 3-5, 1139
(1)298 7500
A levéltár honlapja

Footer

  • A honlapról
  • Témák
  • Házak
  • Tanulmányok

Lábléc másodlagos

  • Impresszum
  • Kapcsolat

Közösségi média

  • Facebook
  • Twitter
  • Instagram
  • Pinterest
Secondary branding image